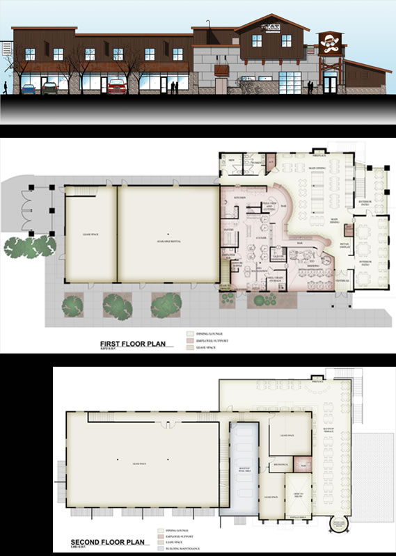
Fat Canvas Brewing Co.

A mixed use two story office building and brew pub located on the BP Amoco reuse site near downtown Casper. The building offers tenant/lease space alongside a locally owned award-winning craft brewing company, the first of its kind in Casper. The Brew Pub features an interior warehouse theme, a gas-fired pizza oven, cast-in-place concrete bar, and a second floor open air rooftop terrace with views of the adjacent North Platte River and Casper Mountain in either direction. The building is sited on a Brownfield and involved in hydrocarbon mitigation design.

Exterior Rendering

 

 

Location
Casper, Wyoming

Owner
Refined Properties
Richie Bratton, Project Manager
307-268-7146

Role
Architect of Record
Interior Design

Personnel
Lyle Murtha, Principal Architect

Scope
New Construction
Design-Build

Size
18,800 Square Feet

Cost
$4.5 Million

Completed
2015 (Design Only)